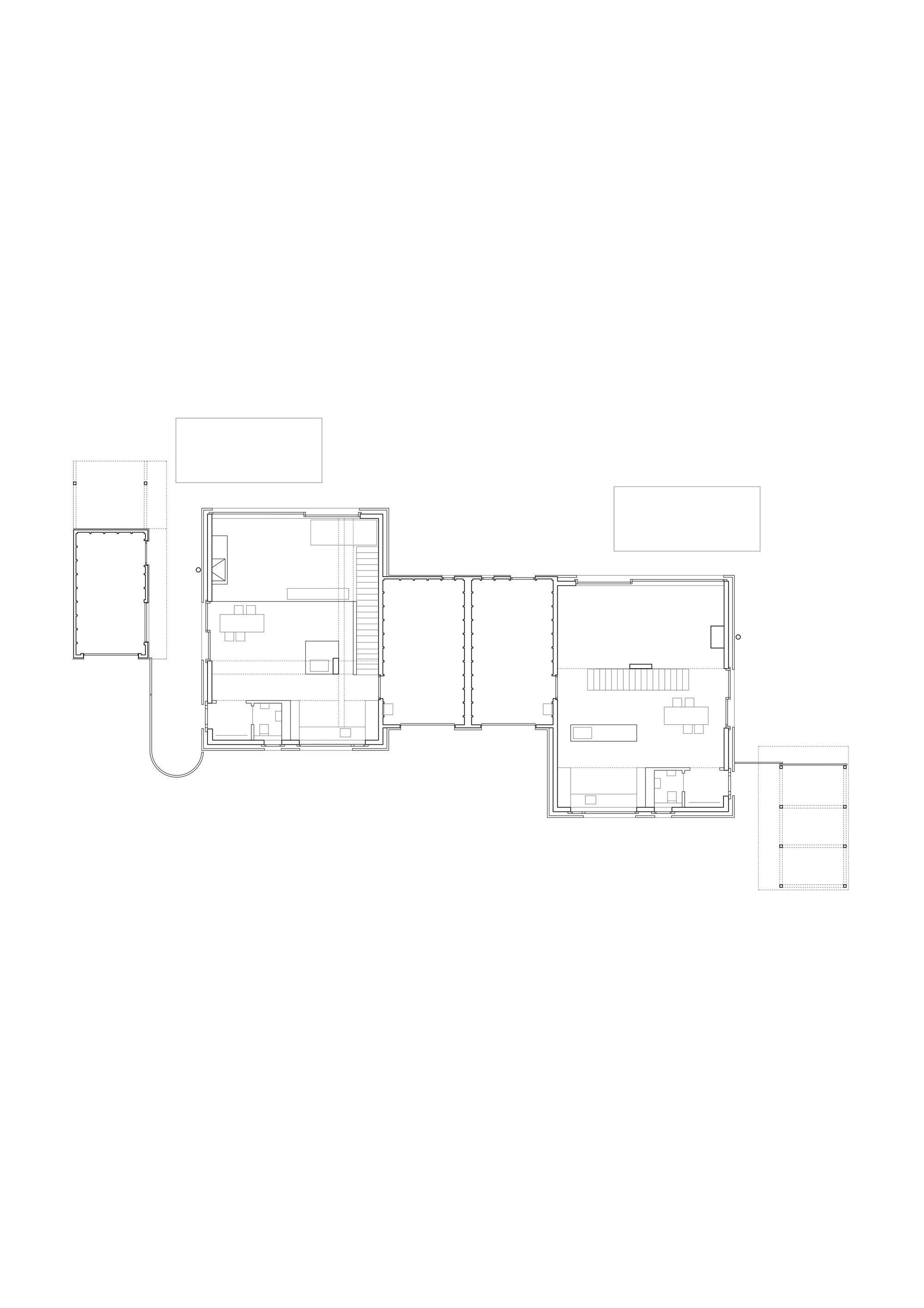
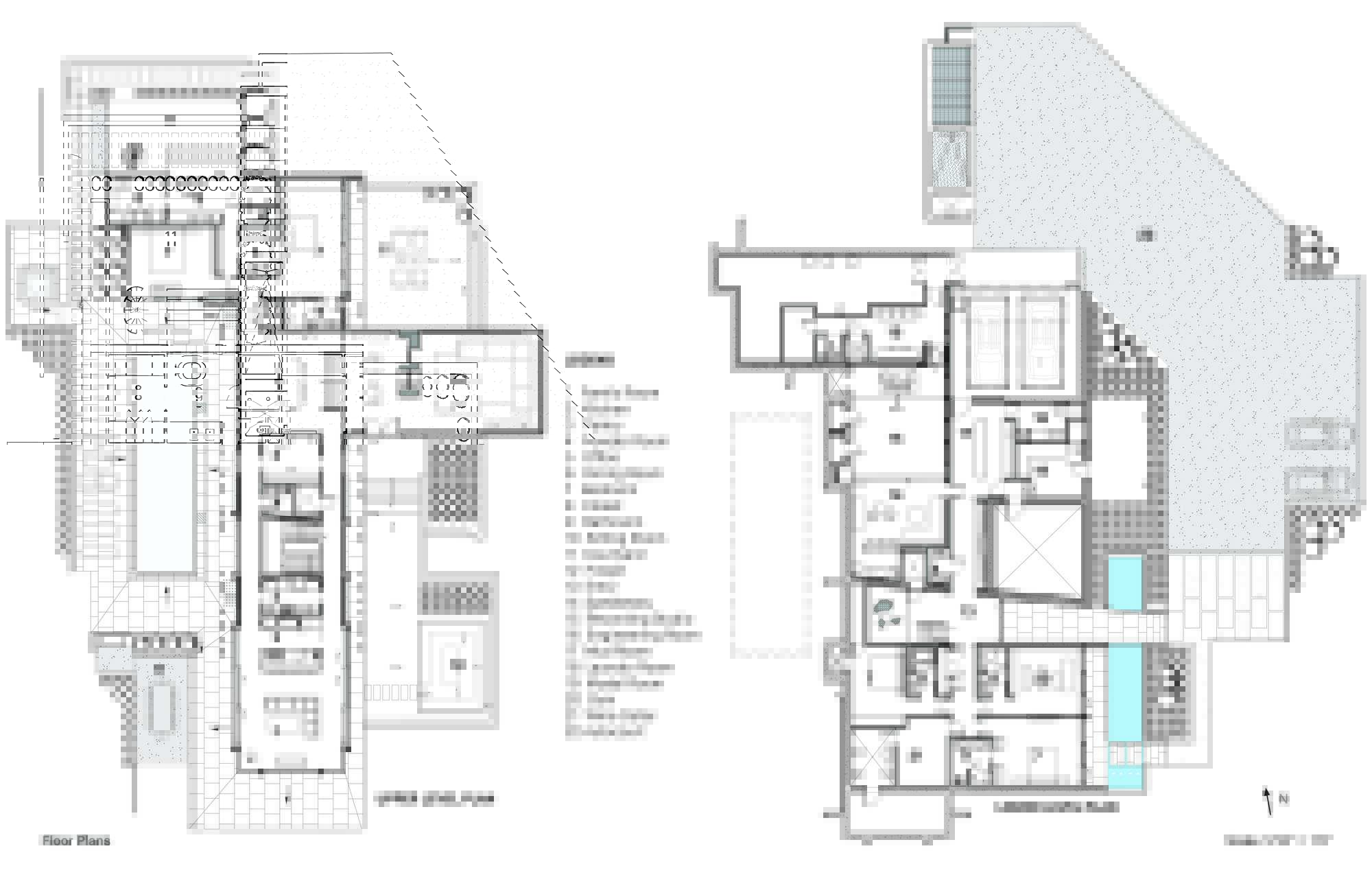
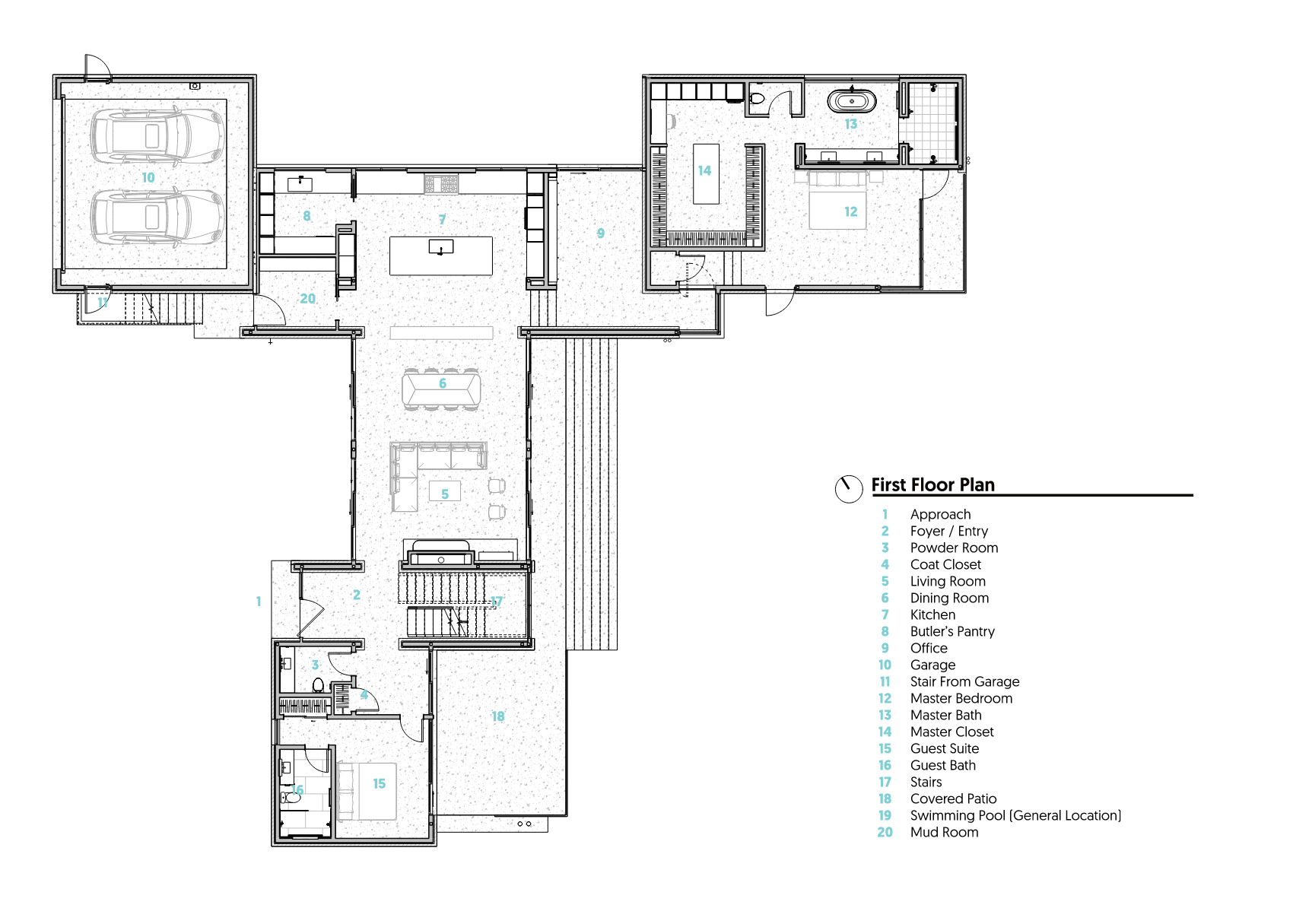
Panorama House
#architecture
Architects: Studio B Architecture + Interiors
Area: 7840 ft²
Year: 2023
Photographs: James Florio
Lead Architects: Studio B Architecture + Interiors
Interior Designers: Leap Interiors
General Contractors: Hansen Construction
City: Boulder
Country: United States








